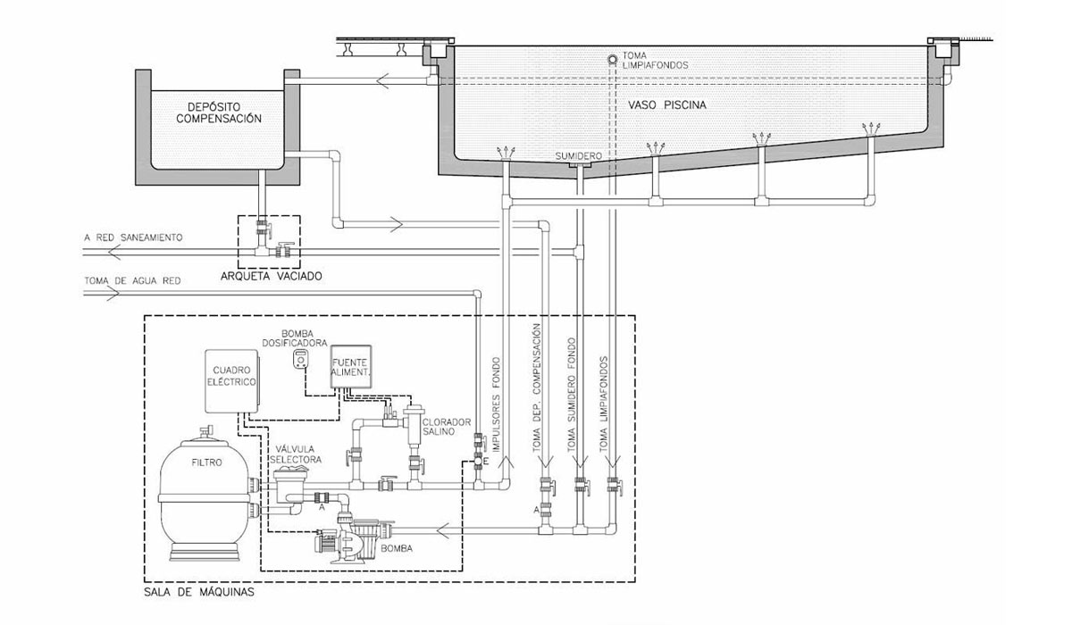
Planos
En Golden Water contamos con un equipo de personal técnico calificado y profesional.
Asesoramos a contratistas y constructores en la elaboración de proyectos hidráulicos, eléctricos, arquitectónicos, en la elección de equipos y accesorios necesarios para el buen funcionamiento de la Piscina o Spa.
